[매물번호 P]
"부동산은 현장을 보는 것이 답이다."
www.mnjrealty.co.kr
프라임 오피스 중개는 달라야 합니다.
프라임 오피스 전문 중개법인입니다.
※ 본 매물은 엠앤제이부동산중개법인의 전속 매물로 제공되는 내부 사진 외 공개가 어려우며 현장에서 바로 보실 수 있습니다.
자세한 문의는 연락바랍니다.(02-518-2864)
OBD 프라임오피스 - 성수동2가 성수일로 108
[기본정보] 2025년 4월 5일 업데이트 기준
| 건물명 | 성수일로 108 | ||
| 소재지 | 성동구 성수동2가 284-8 | 전체주차 | 57대 |
| 사용승인일 | 2025년 5월 예정 | 유료주차 | 추후 협의 |
| 총층 | 지하 4층~지상 11층 | 용도 | 근린생활시설, 업무시설 |
| 엘리베이터 | 2대 | 방향 | 서향(건물 주출입구 기준) |
[임대정보] 2025년 4월 5일 업데이트 기준
| 3.3㎡(평)당 보증금 | 1,010,000원 |
| 3.3㎡(평)당 임대료 | 101,000원 |
| 3.3㎡(평)당 관리비 | 35,000원 |
[공실 임대조건] 2025년 4월 5일 업데이트 기준
※ 임대인이 고지한 면적으로 대장 상 차이가 있을 수 있습니다.
| 해당 층 | 입주시기 | 임대면적3.3㎡(평) | 전용면적3.3㎡(평) |
| 11층(전체) | 2025년 5월 (협의) | 188.06 | 92.48 |
| 10층~4층(전체) | @245.99 | @120.97 | |
| 3층(전체) | 219.43 | 107.90 | |
| 2층(전체) | 317.97 | 156.36 | |
| 1층(일부) | 81.18 | 39.92 |
※ 1층 근린생활시설, 면적은 공사 과정에서 일부 변동될 수 있음
💡 공실현황은 2025년 4월 5일 업데이트 기준이며, 기간에 따라 변동이 가능합니다.
💡 최신 공실현황 업데이트 및 렌트프리/핏아웃/TI(Tenant Improvement) 등 자세한 내용은 문의 바랍니다.
[특징]
성수일로 108은
2호선 뚝섬역, 성수역에서 도보 8분~10분 거리 위치
동부간선도로, 내부순환로 인근에 위치
교통이 편리한 환경입니다.
성수동은 IT기업과 스타트업이 많고 인근 다양한 상업시설, 편의시설이
밀집되어 있어 비즈니스 환경에 최적화 되어 있습니다.
신축 건물로 첫입주하는 만큼 깨끗하고 깔끔하며
제일 큰 평수의 전용면적이 156P으로 넓은 공간으로 개방감있게 사용할 수 있습니다.
또한, 다양한 면적으로 나뉘어 규모에 맞게 계약할 수 있습니다.
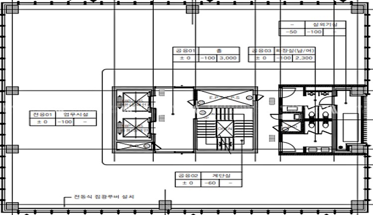
건물 내부는 ㄷ자의 편심코어 구조, 기둥을 사이드에 배치하여 공간 활용에 효율적입니다.
내부에 승강기가 2대
건물 지하주차장 자주식 주차 이용 가능, 총 주차대수 57대로 되어있습니다.
신축, 첫입주 개방감있는 깨끗한 공간
2호선 뚝섬역, 성수역 도보 8분~10 역세권 위치
IT기업, 스타트업 등 비즈니스 인프라 풍부
인근 다양한 상업시설, 편의시설 위치 편리한 업무환경
넉넉한 주차 공간 및 주차 가능
--------------------------[ 매물 담당 ] --------------------------
■ 담 당 : [P] 박운종 대표 / 010-2027-8532
■ 엠앤제이부동산중개법인 (대표 : 박운종)
◌ 서울특별시 서초구 나루터로 68, 9층 (잠원동, 경아빌딩)
◌ 등록번호 : 11650-2024-00265
◌ 대표전화 : 02-518-2864
#강남구중개법인 #상가 #사무실 #빌딩 #고급주택 #임대 #매매 #분양 #경매 #권리금 #사업체양도양수 #빌딩임대매매 #부동산컨설팅 #앰엔제이 #앰엔제이중개법인 #중개법인 #공인중개사 #부동산컨설턴트 #realtor #mnjrealty #프라임오피스 #프라임 #오피스 #대형사무실 #사무실 #사무실이전 #CBD #GBD #YBD #OBD #비즈니스 #렌트프리 #RF #핏아웃 #피트아웃 #FO #TI #공실 #성수일로108 #성수사무실 #뚝섬역
[매물번호 P]
"부동산은 현장을 보는 것이 답이다."
www.mnjrealty.co.kr
프라임 오피스 중개는 달라야 합니다.
프라임 오피스 전문 중개법인입니다.
※ 본 매물은 엠앤제이부동산중개법인의 전속 매물로 제공되는 내부 사진 외 공개가 어려우며 현장에서 바로 보실 수 있습니다.
자세한 문의는 연락바랍니다.(02-518-2864)
OBD 프라임오피스 - 성수동2가 성수일로 108
[기본정보] 2025년 4월 5일 업데이트 기준
| 건물명 | 성수일로 108 | ||
| 소재지 | 성동구 성수동2가 284-8 | 전체주차 | 57대 |
| 사용승인일 | 2025년 5월 예정 | 유료주차 | 추후 협의 |
| 총층 | 지하 4층~지상 11층 | 용도 | 근린생활시설, 업무시설 |
| 엘리베이터 | 2대 | 방향 | 서향(건물 주출입구 기준) |
[임대정보] 2025년 4월 5일 업데이트 기준
| 3.3㎡(평)당 보증금 | 1,010,000원 |
| 3.3㎡(평)당 임대료 | 101,000원 |
| 3.3㎡(평)당 관리비 | 35,000원 |
[공실 임대조건] 2025년 4월 5일 업데이트 기준
※ 임대인이 고지한 면적으로 대장 상 차이가 있을 수 있습니다.
| 해당 층 | 입주시기 | 임대면적3.3㎡(평) | 전용면적3.3㎡(평) |
| 11층(전체) | 2025년 5월 (협의) | 188.06 | 92.48 |
| 10층~4층(전체) | @245.99 | @120.97 | |
| 3층(전체) | 219.43 | 107.90 | |
| 2층(전체) | 317.97 | 156.36 | |
| 1층(일부) | 81.18 | 39.92 |
※ 1층 근린생활시설, 면적은 공사 과정에서 일부 변동될 수 있음
💡 공실현황은 2025년 4월 5일 업데이트 기준이며, 기간에 따라 변동이 가능합니다.
💡 최신 공실현황 업데이트 및 렌트프리/핏아웃/TI(Tenant Improvement) 등 자세한 내용은 문의 바랍니다.
[특징]
성수일로 108은
2호선 뚝섬역, 성수역에서 도보 8분~10분 거리 위치
동부간선도로, 내부순환로 인근에 위치
교통이 편리한 환경입니다.
성수동은 IT기업과 스타트업이 많고 인근 다양한 상업시설, 편의시설이
밀집되어 있어 비즈니스 환경에 최적화 되어 있습니다.
신축 건물로 첫입주하는 만큼 깨끗하고 깔끔하며
제일 큰 평수의 전용면적이 156P으로 넓은 공간으로 개방감있게 사용할 수 있습니다.
또한, 다양한 면적으로 나뉘어 규모에 맞게 계약할 수 있습니다.
건물 내부는 ㄷ자의 편심코어 구조, 기둥을 사이드에 배치하여 공간 활용에 효율적입니다.
내부에 승강기가 2대
건물 지하주차장 자주식 주차 이용 가능, 총 주차대수 57대로 되어있습니다.
신축, 첫입주 개방감있는 깨끗한 공간
2호선 뚝섬역, 성수역 도보 8분~10 역세권 위치
IT기업, 스타트업 등 비즈니스 인프라 풍부
인근 다양한 상업시설, 편의시설 위치 편리한 업무환경
넉넉한 주차 공간 및 주차 가능
--------------------------[ 매물 담당 ] --------------------------
■ 담 당 : [P] 박운종 대표 / 010-2027-8532
■ 엠앤제이부동산중개법인 (대표 : 박운종)
◌ 서울특별시 서초구 나루터로 68, 9층 (잠원동, 경아빌딩)
◌ 등록번호 : 11650-2024-00265
◌ 대표전화 : 02-518-2864
#강남구중개법인 #상가 #사무실 #빌딩 #고급주택 #임대 #매매 #분양 #경매 #권리금 #사업체양도양수 #빌딩임대매매 #부동산컨설팅 #앰엔제이 #앰엔제이중개법인 #중개법인 #공인중개사 #부동산컨설턴트 #realtor #mnjrealty #프라임오피스 #프라임 #오피스 #대형사무실 #사무실 #사무실이전 #CBD #GBD #YBD #OBD #비즈니스 #렌트프리 #RF #핏아웃 #피트아웃 #FO #TI #공실 #성수일로108 #성수사무실 #뚝섬역
엠앤제이부동산중개법인 (주)
M N J REAL ESTATE CORP.
서울특별시 서초구 나루터로 68, 9층 (잠원동, 경아빌딩) / 3호선 신분당선 신사역 4번출구 200M
Tel : 02-2039-2850, Fax : 02-518-2860
E-mail : mnjrealty.contact@gmail.com
사업자등록번호 : 486-81-02569
중개업 등록번호 : 11650-2024-00265
대표자 : 박운종
호스팅 제공자 : (주) 아임웹
※ 본 사이트 상의 이미지 및 데이터베이스를 포함한 모든 콘텐츠에 관한 법적 권리는 '엠앤제이부동산중개법인(주)'에 있으며,
해당 콘텐츠들을 무단으로 도용한 사실이 적발될 시 관련 법률에 의거하여 처벌될 수 있음을 알려드립니다.