[매물번호 Z]
"부동산은 현장을 보는 것이 답이다."
www.mnjrealty.co.kr
프라임 오피스 중개는 달라야 합니다.
프라임 오피스 전문 중개법인입니다.
※ 본 매물은 엠앤제이부동산중개법인의 전속 매물로 제공되는 내부 사진 외 공개가 어려우며 현장에서 바로 보실 수 있습니다.
자세한 문의는 연락바랍니다.(02-518-2862)
CBD 프라임오피스 - 중구 단암빌딩
[기본정보] 2026년 2월 5일 업데이트 기준
| 건물명 | 단암빌딩 | ||
| 소재지 | 중구 소월로 10 | 전체주차 | 250대 (임대면적 100평당 1대 무료) |
| 사용승인일 | 1970년 6월 16일 (2019년 리모델링) | 유료주차 | 24.2만원/대/ 월(VAT포함) |
| 총층 | 지하 3층~지상 26층 | 용도 | 업무시설 |
| 엘리베이터 | 8대 | 방향 | 북동향(건물 주출입구 기준) |
[임대정보] 2026년 2월 5일 업데이트 기준
| 3.3㎡(평)당 보증금 | 1,000,000원 |
| 3.3㎡(평)당 임대료 | 111,000원 |
| 3.3㎡(평)당 관리비 | 49,000원 |
[공실 임대조건] 2026년 2월 5일 업데이트 기준
※ 임대인이 고지한 면적으로 대장 상 차이가 있을 수 있습니다.
| 해당 층 | 입주시기 | 임대면적3.3㎡(평) | 전용면적3.3㎡(평) |
| 12층 | 26년9월이후 | @184.62 | @120.00 |
| 7층 | 26년4월 | @190.00 | @123.50 |
| 2층 | @573.76 | @372.94 |
💡 공실현황은 2026년 2월 5일 업데이트 기준이며, 기간에 따라 변동이 가능합니다.
💡 최신 공실현황 업데이트 및 렌트프리/핏아웃/TI(Tenant Improvement) 등
자세한 내용은 문의 바랍니다.
[특징]
중구 단암빌딩은
1호선,4호선,GTXA,KTX,공항철도선 서울역 도보 5분 거리의 초역세권입니다.
시청, 종각 접근성이 좋으며, 고층건물, 대로변 위치로 가시성이 좋습니다.
서울 1세대 초고층빌딩으로 역사적, 건축사적 의미가 깊은 서울의 랜드마크 빌딩입니다.
서울역은 무려 6개 노선이 지나는 중심지로 직원 출퇴근뿐 아니라 방문객(외국인포함)
접근성이 우수합니다.
건물내 스타벅스, 약국, F&B 등 각종 리테일 시설을 제공하여 편리한 업무환경이 장점인 곳입니다.
현재 제일 큰 평수의 전용면적이 372P의 넓은 공간으로 개방감있게 사용할 수 있습니다.
또한, 다양한 면적을 선택, 규모에 맞게 계약할 수 있습니다.
건물 내부는 층고가 높고 외벽이 통창으로 채광이 좋으며
각 층별 외부 남/녀 분리 화장실,
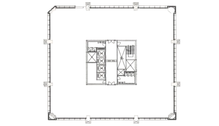
평면도를 보면 'ㅁ'자 구조의 측면 기둥배치로 넓은 공간을 다양하게 활용하기 좋습니다.
내부에 승강기가 8대가 있어 원활한 이동이 가능하며
건물 지하주차장 및 옥외주차장을 이용할 수 있으며, 총 주차대수 250대로 넉넉하게 주차 가능합니다.
층고가 높고 개방감이 우수하며 전면 유리창으로 채광이 좋음
1호선 서울역 및 4호선 회현역 도보 5분내 초역세권
고층건물로 가시성 좋으며 숭례문,남산타워,서울역 조망 가능
넉넉한 주차 공간 및 주차 가능
--------------------------[ 매물 담당 ] --------------------------
■ 담 당 : [Z] 박운종 대표 / 010-2027-8532
■ 엠앤제이부동산중개법인 (대표 : 박운종)
◌ 서울특별시 서초구 나루터로 68, 9층 (잠원동, 경아빌딩)
◌ 등록번호 : 11650-2024-00265
◌ 대표전화 : 02-518-2862
#강남구중개법인 #상가 #사무실 #빌딩 #고급주택 #임대 #매매 #분양 #경매 #권리금 #사업체양도양수 #빌딩임대매매 #부동산컨설팅 #앰엔제이 #앰엔제이중개법인 #중개법인 #공인중개사 #부동산컨설턴트 #realtor #mnjrealty #프라임오피스 #프라임 #오피스 #대형사무실 #사무실 #사무실이전 #CBD #GBD #YBD #OBD #비즈니스 #렌트프리 #RF #핏아웃 #피트아웃 #FO #TI #공실 #종로구프라임오피스 #서울역프라임오피스임대
[매물번호 Z]
"부동산은 현장을 보는 것이 답이다."
www.mnjrealty.co.kr
프라임 오피스 중개는 달라야 합니다.
프라임 오피스 전문 중개법인입니다.
※ 본 매물은 엠앤제이부동산중개법인의 전속 매물로 제공되는 내부 사진 외 공개가 어려우며 현장에서 바로 보실 수 있습니다.
자세한 문의는 연락바랍니다.(02-518-2862)
CBD 프라임오피스 - 중구 단암빌딩
[기본정보] 2026년 2월 5일 업데이트 기준
| 건물명 | 단암빌딩 | ||
| 소재지 | 중구 소월로 10 | 전체주차 | 250대 (임대면적 100평당 1대 무료) |
| 사용승인일 | 1970년 6월 16일 (2019년 리모델링) | 유료주차 | 24.2만원/대/ 월(VAT포함) |
| 총층 | 지하 3층~지상 26층 | 용도 | 업무시설 |
| 엘리베이터 | 8대 | 방향 | 북동향(건물 주출입구 기준) |
[임대정보] 2026년 2월 5일 업데이트 기준
| 3.3㎡(평)당 보증금 | 1,000,000원 |
| 3.3㎡(평)당 임대료 | 111,000원 |
| 3.3㎡(평)당 관리비 | 49,000원 |
[공실 임대조건] 2026년 2월 5일 업데이트 기준
※ 임대인이 고지한 면적으로 대장 상 차이가 있을 수 있습니다.
| 해당 층 | 입주시기 | 임대면적3.3㎡(평) | 전용면적3.3㎡(평) |
| 12층 | 26년9월이후 | @184.62 | @120.00 |
| 7층 | 26년4월 | @190.00 | @123.50 |
| 2층 | @573.76 | @372.94 |
💡 공실현황은 2026년 2월 5일 업데이트 기준이며, 기간에 따라 변동이 가능합니다.
💡 최신 공실현황 업데이트 및 렌트프리/핏아웃/TI(Tenant Improvement) 등
자세한 내용은 문의 바랍니다.
[특징]
중구 단암빌딩은
1호선,4호선,GTXA,KTX,공항철도선 서울역 도보 5분 거리의 초역세권입니다.
시청, 종각 접근성이 좋으며, 고층건물, 대로변 위치로 가시성이 좋습니다.
서울 1세대 초고층빌딩으로 역사적, 건축사적 의미가 깊은 서울의 랜드마크 빌딩입니다.
서울역은 무려 6개 노선이 지나는 중심지로 직원 출퇴근뿐 아니라 방문객(외국인포함)
접근성이 우수합니다.
건물내 스타벅스, 약국, F&B 등 각종 리테일 시설을 제공하여 편리한 업무환경이 장점인 곳입니다.
현재 제일 큰 평수의 전용면적이 372P의 넓은 공간으로 개방감있게 사용할 수 있습니다.
또한, 다양한 면적을 선택, 규모에 맞게 계약할 수 있습니다.
건물 내부는 층고가 높고 외벽이 통창으로 채광이 좋으며
각 층별 외부 남/녀 분리 화장실,
평면도를 보면 'ㅁ'자 구조의 측면 기둥배치로 넓은 공간을 다양하게 활용하기 좋습니다.
내부에 승강기가 8대가 있어 원활한 이동이 가능하며
건물 지하주차장 및 옥외주차장을 이용할 수 있으며, 총 주차대수 250대로 넉넉하게 주차 가능합니다.
층고가 높고 개방감이 우수하며 전면 유리창으로 채광이 좋음
1호선 서울역 및 4호선 회현역 도보 5분내 초역세권
고층건물로 가시성 좋으며 숭례문,남산타워,서울역 조망 가능
넉넉한 주차 공간 및 주차 가능
--------------------------[ 매물 담당 ] --------------------------
■ 담 당 : [Z] 박운종 대표 / 010-2027-8532
■ 엠앤제이부동산중개법인 (대표 : 박운종)
◌ 서울특별시 서초구 나루터로 68, 9층 (잠원동, 경아빌딩)
◌ 등록번호 : 11650-2024-00265
◌ 대표전화 : 02-518-2862
#강남구중개법인 #상가 #사무실 #빌딩 #고급주택 #임대 #매매 #분양 #경매 #권리금 #사업체양도양수 #빌딩임대매매 #부동산컨설팅 #앰엔제이 #앰엔제이중개법인 #중개법인 #공인중개사 #부동산컨설턴트 #realtor #mnjrealty #프라임오피스 #프라임 #오피스 #대형사무실 #사무실 #사무실이전 #CBD #GBD #YBD #OBD #비즈니스 #렌트프리 #RF #핏아웃 #피트아웃 #FO #TI #공실 #종로구프라임오피스 #서울역프라임오피스임대
엠앤제이부동산중개법인 (주)
M N J REAL ESTATE CORP.
서울특별시 서초구 나루터로 68, 9층 (잠원동, 경아빌딩) / 3호선 신분당선 신사역 4번출구 200M
Tel : 02-2039-2850, Fax : 02-518-2860
E-mail : mnjrealty.contact@gmail.com
사업자등록번호 : 486-81-02569
중개업 등록번호 : 11650-2024-00265
대표자 : 박운종
호스팅 제공자 : (주) 아임웹
※ 본 사이트 상의 이미지 및 데이터베이스를 포함한 모든 콘텐츠에 관한 법적 권리는 '엠앤제이부동산중개법인(주)'에 있으며,
해당 콘텐츠들을 무단으로 도용한 사실이 적발될 시 관련 법률에 의거하여 처벌될 수 있음을 알려드립니다.